GRUPO
AXVI
INICIO
Sobre GA
Residencial Caura XIV
GA Inmobiliario
GA Inversiones
GA Hosting
GA Marketing
GA Proyectos
GA Eventos
GA Colaboradores
Equipo y contacto
Reserva online
Más
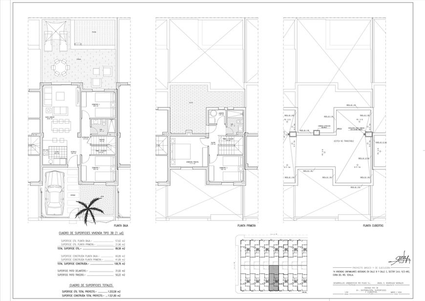
Las viviendas de tipo 1 tienen un precio de 239.000€ De las 14 viviendas unifamiliares adosadas que se venden en la promoción, de este tipo solo habrá 2, la vivienda número 5 y la vivienda número 11.